不動産情報
名護市宇茂佐の森 新築戸建て 第⑮号棟
名護市宇茂佐の森 新築戸建て 第⑮号棟
物件情報
| 価格 | 成約済 | 階数 | 2階建て |
|---|---|---|---|
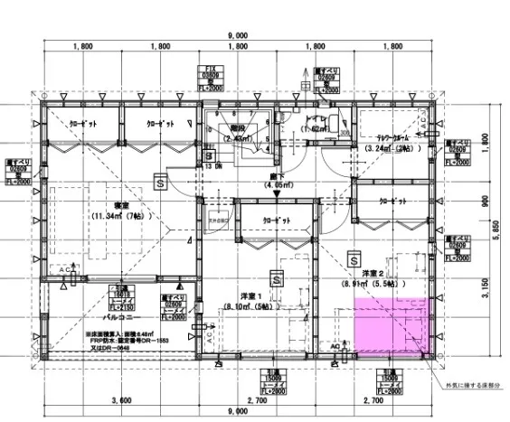
| 間取り | 4LDK ( 洋7 洋5 洋5.5 和5 LDK16.2) | ||
| 建物面積 | 102.87m² / 31.11坪 | 土地面積 | 188.79m² / 57.1坪 |
| 私道負担 | - | 築年月 | 2026年05月(新築) |
| 駐車場 | 2台 縦列 | 地目 | - |
| 引き渡し | 相談 | 接道方向 / 道路幅員 | - |
| 土地権利 | 所有 | 都市計画 | - |
| 用途地域 | 第一種中高層・第一種低層 | 建物構造 | 木造 |
| 取引態様 | 仲介 | 所在地 | 名護市宇茂佐の森 |
| 建ぺい率 / 容積率 | 50% / 100% | 交通 | - |
| 価格備考 | - | ||
この物件の設備
| キッチン | 給湯 、省エネ給湯器 、浄水器 、ガスコンロ 、コンロ三口以上 、対面式キッチン(カウンターキッチン) 、システムキッチン |
|---|---|
| バス・トイレ | バス/トイレ別 、ユニットバス 、浴槽 、シャンプードレッサー 、独立洗面所 、追焚機能 、浴室乾燥機 、浴室暖房 、トイレ2ヶ所 、温水洗浄便座 |
| セキュリティ | インターフォン 、TVホン(TVモニタ付インターホン) 、ディンプルキー 、防犯用ガラス |
| 室内設備 | 室内洗濯機置き場 |
| 収納 | シューズボックス 、床下収納 、全居室収納 |
| 建物設備 | 上水道 、下水道 、24時間換気システム 、プロパンガス 、ルーフバルコニー |
| 構造 | 制震構造 、耐震構造 、ノンホルムアルデヒド |
| 評価・証明書 | 設計住宅性能評価書 、建設住宅性能評価書(新築時) 、完了検査済証 |